Sold Off Market
The Jessie Street site was always destined for transformation. What stood on the land was a much-loved family home, one that had sheltered generations of children and grandchildren. Yet beneath its warmth lay significant structural and compliance challenges — a failing roof, non-conforming stairs, and a level of wear that would have demanded a complete cosmetic overhaul to meet today’s market expectations. Rather than restore, the vision became clear: to honour the site’s potential through a knockdown rebuild, creating a five-bedroom family residence that could truly embrace the possibilities of the land.
Location was everything. Positioned in an enviable pocket of Northcote, Jessie Street presented the opportunity to deliver a home that was not only spacious, but also attuned to modern family living. The purchase itself was somewhat counter-market — acquired at a time when many were holding back, the reduced competition made space for bold ideas to take root.
This boldness extended beyond design into the project’s structure. The Jessie Street home was realised as a joint venture (JV) under the BuildHer Collective umbrella — a model designed to mentor, empower, and share the risks and rewards of development. For me, it was an opportunity I couldn’t let pass, even if I wasn’t in a position to take it on alone. JV projects allow individuals to step into property development supported, surrounded by others navigating the same journey. From these collaborations, not only homes but friendships and future ventures are built.

Collaboration & Trust
The partnership with Rubiks Cubed as the builder was central to the project’s success. Having previously worked with Koray on his own Westgate residence, we knew his meticulous approach, pride in workmanship, and respect for detail. That foundation of trust made the decision to appoint him as builder effortless. What followed was a relationship underscored by transparency, open communication, and mutual respect.
Practical communication played a vital role. With some JV partners based interstate, milestone site visits weren’t always possible. Koray’s regular video updates via WhatsApp became an essential lifeline, ensuring everyone — regardless of location — could feel involved, informed, and reassured. This fostered confidence within the group, and more importantly, created a shared sense of ownership.
Designers and builders inevitably find themselves problem-solving in real time, and Jessie Street was no exception. From last-minute adjustments to reworking details for functionality, the process demanded agility and collaboration. What made this project unique, however, was the absence of tension; open lines of communication turned challenges into opportunities, reinforcing that the most successful builds are born from trust.
Design Philosophy
“Go bold or go home” became our mantra. In a market where safety often dominates, we were determined to create a home with presence — one that would stand apart rather than blend in. The exterior, painted in Dulux ‘Manifest’, embodies this philosophy. It’s a statement in colour and confidence, playful yet sophisticated, ensuring Jessie Street would never be mistaken for its neighbour.
For this project, we specified Hardie™ Fine Texture Cladding paired with accent battens — a combination that allowed us to explore shadow, rhythm, and fine detail to shape a truly distinctive façade. The refined, tactile finish introduces softness and elegance, while the battens add depth and architectural interest, creating a balance that feels both contemporary and timeless.
Collaborating with James Hardie gives us the confidence to push creative boundaries, knowing the materials will perform beautifully over time. Showcasing their products across our projects is a natural extension of that trust. As we often say – Choosing the right materials is essential — they need to be durable, weather-resistant, low maintenance and safe. That’s why I love working with James Hardie. The Architectural Collection gives me the freedom to design homes I love, without compromise — strengthened by true collaboration with trusted partners.
The architecture itself balances bold gestures with softening details. Rolled edges are juxtaposed against sharp ninety-degree angles, while a play of texture and form creates a façade that is both strong and inviting. This theme continues inside, where joinery shifts between striking tones and soft chamois shades with subtle green undertones. The interplay of colour means the interiors shift throughout the day, responding to natural light in ways that make the house feel alive.
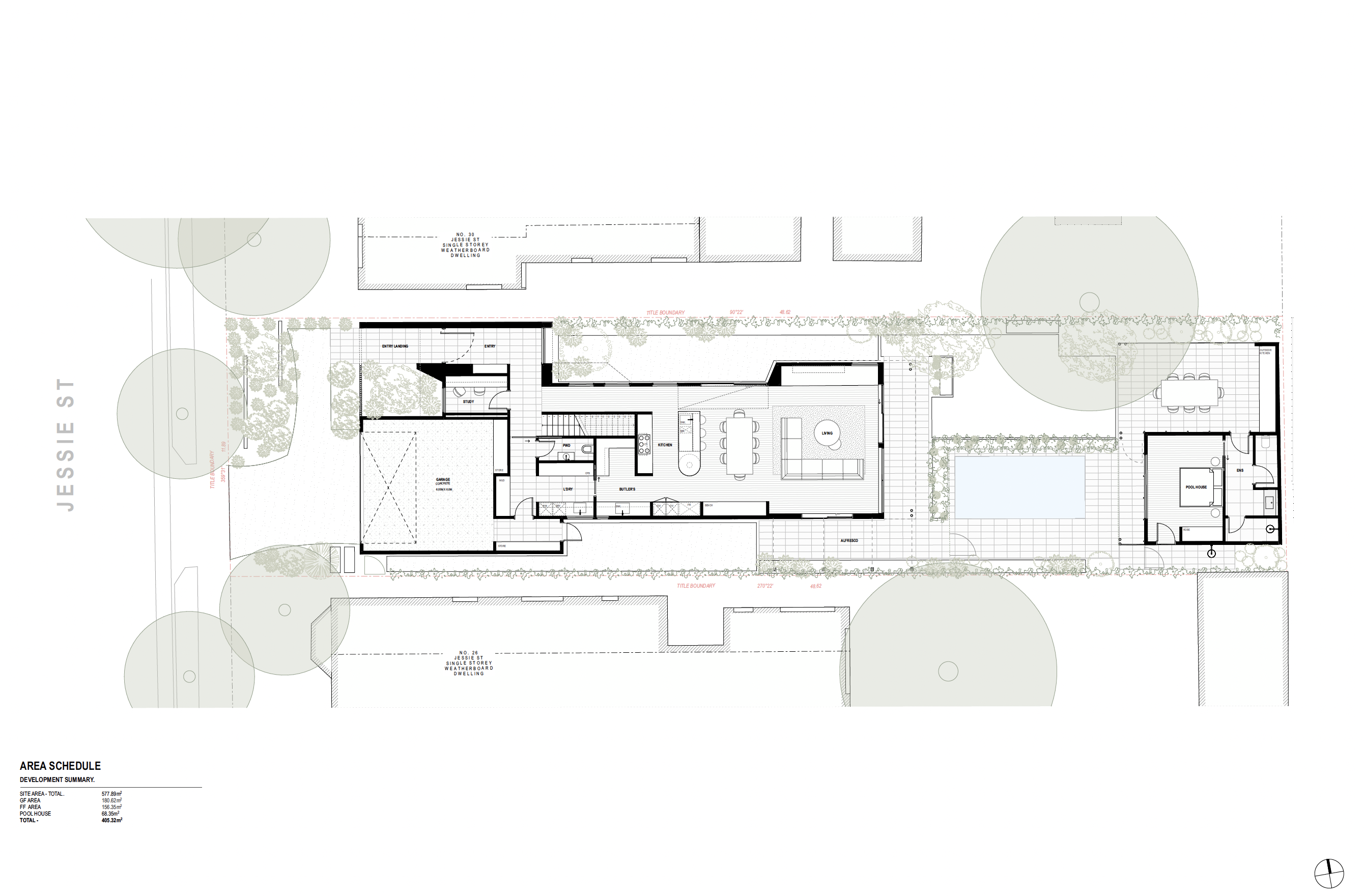
Storage, always at the heart of functional design, became a non-negotiable. Bedroom 2 presented the greatest challenge, with a large façade window dictating the layout. Rather than compromise, we embraced the constraint — delivering one of the most generous storage solutions in the home, wrapped in light and framed by sunlit views. These are the details that balance practicality with delight.
Hero moments abound at Jessie Street. The façade itself is a defining statement, while the pool house and outdoor living zone invite endless opportunities for connection and relaxation. Functionally, the sequencing of garage, laundry, pantry, and kitchen ensures seamless daily living — a detail perhaps less obvious in photographs, but transformative for family life.
Lifestyle & Livability
The pool house, in particular, was designed as a flexible asset, capable of adapting to a family’s evolving needs. It can host an adult child seeking independence, offer accommodation for extended family or guests from overseas, double as a home office, or even be leveraged as short-term accommodation during Melbourne’s event seasons. Its versatility ensures the home extends beyond its own walls, enriching lifestyle and investment potential alike.
Inside, spaces are crafted to support the rhythms of family life. The study, positioned at the front of the home with views to the garden, marries wellbeing with productivity — a daily reminder of the connection between built form and nature. Northern light was deliberately captured to enhance warmth and ambience, while thermoglazed, airtight windows elevate the home’s energy performance, ensuring year-round comfort.
Joinery is abundant and purposeful, from daybeds with concealed deep storage to dedicated spaces for seasonal items like ski gear, camping equipment, and suitcases. The intent was simple: to create a home that accommodates life’s realities without compromising on elegance.

Challenges & Triumphs
No project is without its obstacles. Jessie Street’s most significant challenge came in upgrading the power supply — a technical hurdle resolved through close collaboration between builder and trades. Material delays, too, tested agility, with tile selections requiring quick pivots supported by trusted suppliers and an extensive library of alternatives. Each hurdle reinforced the importance of adaptability and resourcefulness.
For me, the project’s turning point came as the joinery was installed — a moment where the design truly came to life, revealing how the house responded to light and time of day. Soon, landscaping will complete the picture, softening the edges and grounding the home in its setting. These are the milestones that mark the transition from construction site to sanctuary.
Reflection
Jessie Street has been more than a build; it has been a shared journey in trust, collaboration, and vision. Joint ventures demand careful nurturing of both finances and relationships, and the Jessie Street team proved that with the right people, the process can be both rewarding and transformative.
If I were to describe Jessie Street in three words: family, entertaining, comfortable. Yet words alone cannot capture its true essence — a home designed to evolve with its occupants, to host their milestones, and to be loved in return.
As this home now prepares for its next chapter, my greatest excitement lies in handing over the keys. I can already imagine children rushing to claim their bedrooms, families gathering around the pool, and memories being etched into its walls. Jessie Street will be more than a house; it will be a backdrop for life’s stories, a refuge, and a place of celebration.
Get the look!
Download our Project Look book here: Jessie Street Look Book

Partners and Suppliers:
Architect – Obi Office
Builder – Rubik’s Cubed
Landscape – Silver Leaf
Cladding – James Hardie
Lights – Lights Lights Lights
Timber flooring – Godfrey Hirst
Carpet – Jagers Carpets
Stone – RMS Traders
Tiles – RMS Traders
Tiles – Artedomus
Tapware – Abi Interiors
Curtains – Shadey
Barstools – Satara




